烟台 切换城市

请选择您所在的城市:

    热门
    城市

    沪上国货运动的主阵地——蓬莱市场

    来源:上海规划资源   作者:上海规划资源

       阅读:444

       发布时间:2021-10-25 17:09:09

       评论:0

    [摘要] 匡氏立志兴国货蓬莱市场四步走综合业态新风尚金融商业相融合日寇记恨付一炬国货自强志不移1937年11月,日寇侵占南市后,迫不及待地点燃了位于蓬莱路学前街路口的蓬莱市场。漫天大火连续燃烧两天两夜,占地二十四亩的蓬莱市场,在一片火海中化为残垣断壁。刚占领南市,就火烧蓬莱市场,可见日寇对后者的忌惮与痛恨。由此就说

    沪上国货运动的主阵地——蓬莱市场


    匡氏立志兴国货

    蓬莱市场四步走

    综合业态新风尚

    金融商业相融合

    日寇记恨付一炬

    国货自强志不移

    1937年11月,日寇侵占南市后,迫不及待地点燃了位于蓬莱路学前街路口的蓬莱市场。漫天大火连续燃烧两天两夜,占地二十四亩的蓬莱市场,在一片火海中化为残垣断壁

    刚占领南市,就火烧蓬莱市场,可见日寇对后者的忌惮与痛恨。由此就说到蓬莱市场的另一个名字——蓬莱国货市场,及其创办初衷——提倡国货,抵制日货

    二十世纪初,日本工业品行销东亚,中国成为其最大的海外市场。辛亥革命后,中国民族工商业渐成规模。以“提倡国货,抵制日货”为主题的国货运动在全国风起云涌,尤以工商业中心城市上海规模最大,成果最为显著

    波澜壮阔的国货运动大潮中,蓬莱市场以旗帜鲜明,力量雄厚,组织动员能力强等一系列优势,站到了队伍的前列,成为国货运动的重要阵地和主要战场

    现存的老照片中,依稀可见蓬莱市场当年商户林立、号旗飘展的繁华场景。宫殿式飞檐走壁的门楣和窗栏杆,富丽堂皇,与其经营国货的市场定位极其相符

    沪上国货运动的主阵地——蓬莱市场


    即将开业的蓬莱市场

    蓬莱市场创始人匡仲谋1877年出生在无锡的一个师塾家庭,少年时代只身来到上海,因其天赋异禀,尤善经营之道,1902年开始开创自己的事业,在上海开设亚东棉业公司。1905年在家乡无锡开办起亨吉利布厂,之后又涉足金融、地产行业,积累了大量的财富,用于兴建蓬莱市场的二十四亩土地即为匡氏所有

    匡仲谋对蓬莱市场的建造倾注了巨大的热情。他曾亲自前往北平、天津、大连等地实地考察商业市场的先进模式,回来后多方论证,精心谋划

    沪上国货运动的主阵地——蓬莱市场


    匡仲谋(1877-1956)

    按照最初设想:蓬莱市场最终将建成一座六层或七层楼高的新式商场。计划用五年左右时间,分四个工期,采取分期建设,边建设边投入使用的方式逐步推进。这样既可盘活资金,又能使市场尽早发挥作用

    因为种种原因,蓬莱市场最终只完成了第一期工程。建成为一座设计新颖,现代感十足的二层商厦。即便如此,其规模也已足够壮观。商铺呈井字回形排列,底层一百四十四个商铺均朝向极佳,店铺排列和装潢整齐划一,自然采光进风,内外空气流通。楼上用于储存货物,租作简易工场,或用于市场内人员的宿舍

    早在建设阶段,筹备处已经开始接受不少预订。很多厂商准备在蓬莱市场落成之后入驻,设立门市部。这些品牌在当年大都赫赫有名,部分更延续至今,已经成为中华老字号,如冠生园食品公司、大中华橡胶厂、小花园鞋店、美亚丝绸厂、亚浦耳电器厂、三友实业社、中华珐琅厂、五洲大药房、家庭工业社、张小泉杭剪店、上海土布商店、明星内衣公司等等

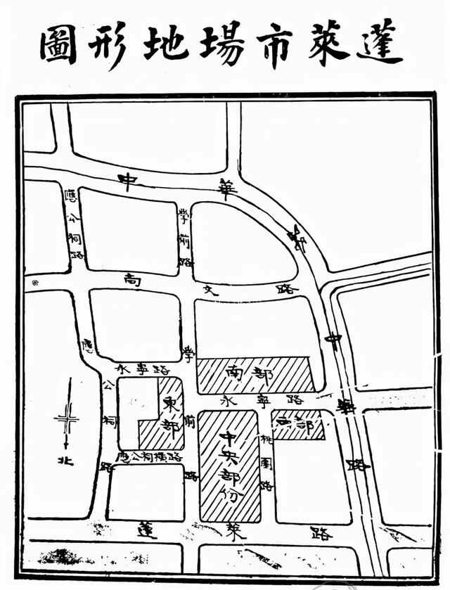
    沪上国货运动的主阵地——蓬莱市场


    蓬莱市场地形图,上海报》,1929年10月8日

    在规划设计上,蓬莱市场极具超前意识。如今流行的综合业态,其已开始实践。市场中央建起集贤酒菜馆、迎宾楼、茶楼、书场、天乐窝剧场,面南有跑驴场、锦秀阁,东边建成拥有一千个座位的蓬莱大戏院

    值得一提的是蓬莱银号,在商业与金融结合方面发挥着积极作用。蓬莱银号立足蓬莱市场,仅为市场提供服务和支持。市场内商贾云集,每天产生大量的交易资金。商家将现金集中存入保障措施齐备的银号,资金安全有了保证。除此之外,一时周转困难的商户,银号在衡量评估之后,常可贷放出低息甚至免息贷款。此举有力的支持了民族品牌的经营和成长。

    沪上国货运动的主阵地——蓬莱市场


    蓬莱市场平面示意图,来源:《南市区地名志

    蓬莱市场在兴建之初,即果断而明确地擎起振兴国货的大旗。很多品牌的当家人都与匡仲谋熟识,入驻此地,既是出于商业利益的需要,也是为了支持蓬莱市场倡导的爱国和奋进精神

    1930年3月8日下午一时,蓬莱市场正式开业。当日市场内人头攒动,生意兴隆,数十家商铺的营业额均超过数百元,多者过千。为了扩大影响,匡仲谋重视宣传舆论的作用。他创办的《上海报》总发行量达到了二万五千份,其中上海发行一万份,外埠一万五千份。市场开业后,该报进行了大力的宣传,促进了蓬莱市场的发展,一座集“吃、穿、玩、用”于一体的综合市场很快迎来其全盛时期

    在生意兴隆的同时,匡仲谋始终没有忘记初心和夙愿——提倡国货,抵制日货。1930年,在市场西面曾举办过一场影响巨大的国货展览。匡氏请来当红明星——电影皇后胡蝶,夏佩珍、高倩苹,天一电影制片厂的台柱子陈玉梅等十余位。她们身着由场内棉布店、服装店提供面料并裁剪制作的土布旗袍款款登台,绕场数周。明星们姣好的容貌,曼妙的身姿,将土布旗袍表现得漂亮得体,流光溢彩

    沪上国货运动的主阵地——蓬莱市场


    蓬莱市场举办国货展示

    这场展示效果轰动,其积极影响很快走出市场,延伸到整个南市。最先响应的是思想进步的爱国学生,上海中学、务本女中的学生们纷纷穿上土布学生装或者旗袍,以表达自己“提倡国货,抵制日货”的爱国情怀

    沪上国货运动的主阵地——蓬莱市场


    务本女中的学生身着土布制成的旗袍

    这场展览原定三天,后因观众如潮,热情高涨而延长至七天,最终参观者多达十万人次。展览会门前原名为煤屑路的一条小马路也因此被市民改称为“国货路”并延续至今。

    另一次规模较大的国货宣传发生在1934年的冬天,以一场匠心独具的提灯巡游形式登场。市场内一百多家商号人员,附近的中小学生都积极响应。大家提着形形色色的彩灯,有组织地从蓬莱市场出发,围绕老城厢环城游行。游行队伍兴高采烈,喜气洋洋,彩灯上印着精心撰写的宣传标语:“凡吾国民无论男女,须一律用国货”、“用国货从家庭起,一转眼普及全社会”等等,借以宣扬蓬莱市场一贯倡导的“提倡国货,抵制日货”之精神。蜿蜒的灯龙在南市夜空下逶迤前行,直到午夜才又回到蓬莱市场

    沪上国货运动的主阵地——蓬莱市场


    蓬莱市场举办土布运动大会

    蓬莱市场的盛世繁华在“八一三”事变后戛然而止。此前,匡仲谋已经积极投身于抗日救亡当中。《上海报》大力号召上海军民奋力抗击侵略者,直到南市沦陷该报停刊为止。其名下的蓬莱大剧院从1937年8月7日至13日,连演七天大型话剧《保卫卢沟桥》,昼夜不停,气势磅礴,民众很受鼓舞。刚刚从日本回国的郭沫若看后,曾讲:“卢沟桥虽然失掉了,我们依然要保卫卢沟桥

    有人说,正是匡仲谋的这一系列爱国之举招致日寇的记恨。蓬莱市场火光冲天的当晚,匡仲谋就住在八仙桥青年会八楼,向南远眺,眼见自己倾注多年心血,报以厚望的蓬莱市场在漫天大火和浓烟翻滚中毁于一旦,无比痛心

    沪上国货运动的主阵地——蓬莱市场


    1947年版上海市行号路图录上的蓬莱市场,已不复当年之盛况

    战后,匡仲谋始终念念不忘复兴蓬莱市场,新的计划甚至比当年的“四步走”还要宏大。但由于社会动荡、百业萧条,最终仅能依托原有基础,勉强恢复。后由于国内战事不断,造成民众购买力下降,市场生意冷清,最终无奈歇业。如今,蓬莱市场虽已不在,但精神却毫不过时,中华要崛起,国货当自强

    (来源:上海城建档案)

    关键词: 蓬莱 国货 市场 日寇 工商业

    精彩评论文明上网理性发言,请遵守评论服务协议

    共0条评论
    加载更多